
Металл қауіпсіздік қоршауларын Liwiyuan, кәсіби қытай болат құрылымы өндірушісі шығарады. Кепілдендірілген сапаны зауыттық тікелей сату кепілдігі. Олар қабырғаға, қоршауларға және қоршауларға арналған қауіпсіздік құрылғылары ретінде кеңінен қолданылады. Сіздің сұрағыңызбен құттықтаймыз!
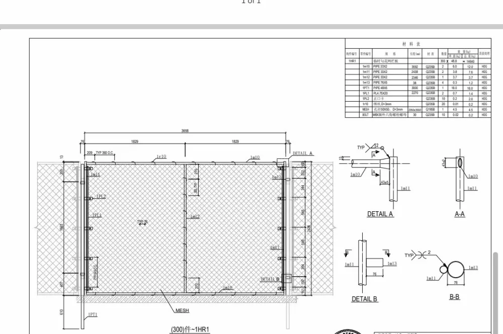
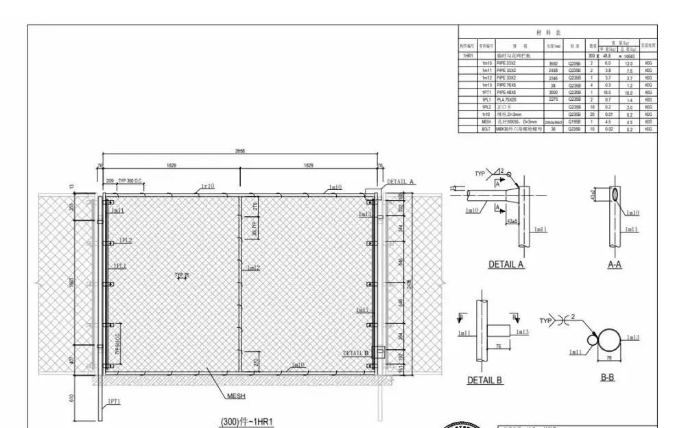
Liwiyuan's металл қауіпсіздік қоршауларының негізгі құрылымдық компоненттері жақтау, бойлық аралар, коннекторлар және қолдау жазбаларын қамтиды. Жақтау негізінен, ең алдымен, әртүрлі металл материалдардан жасалған және жеке дизайн қажеттіліктерін қанағаттандыру үшін әртүрлі пішіндермен келеді. Жақтау материалдарына негізінен мырышталған болат табақ, мырышталған дөңгелек құбыр, мырышталған квадрат құбыр және тізбекті қоршау кіреді. Бұл материалдар олардың беріктігі мен коррозияға төзімділігі үшін таңдалады. Тозық сәулелері дуал жиектемелерінің арасына бекітілген, олардың күші мен қаттылығын арттыру, оларды тұрақты және сенімді ету.
Коннекторлар - бұл қоршауды қолдау жазбаларына қосатын негізгі компоненттер. Біз мырышталған болат табақты, мырышталған дөңгелек болатты және мырышталған құбырларды қолданамыз. Бұл материалдар жел мен жер сілкінісіне төзімділікті ұсынады, пайдалану кезінде қопсытуға және қоршаудың қауіпсіздігіне және тұрақтылығын қамтамасыз етуге мүмкіндік береді. Қолдау жазбалары - қоршаудың негізгі тірек компоненттері. Біз әр түрлі тірек жазбаларын орынға, қажеттіліктерге және қоршаған ортаға байланысты қолдана аламыз. Алайда, бұл хабарламалар үшін пайдаланылған материалдар жоғары тұрақтылық, жел және жер сілкінісіне төзімділігі және пайдалану кезінде қауіпсіздіктің беріктігі болуы керек.


Біздің металл қауіпсіздік қоршаулары алынбалы және қайта пайдалануға болады. Олардың биіктігі, ені және қосылу әдістері тұтынушылардың қажеттіліктері мен қолданылу сценарийіне сәйкес, қауіпсіздік пен экологиялық ыңғайлылықты қамтамасыз ету үшін жобалануы және өндірілуі мүмкін.


Біздің металл қауіпсіздігіміздің қоршаулары басқа ғимараттар мен жолдардан бастап, оқшауланған жұмыс кеңістігін құра отырып, құрылыс алаңдарын тиімді бөледі. Оларды бөлшектеуге және қажет болған жағдайда қайта жинауға болады.
Семинарды оқшаулау торлары, ең алдымен, қауіпсіздік техникасы, ең алдымен, жұмыс орындарын демек, қауіпті жабдықты оқшаулау және жұмысшыларды қорғау үшін жиі қолданылады.
Біздің өнімдерімізді жабық қойма қоршаулары ретінде пайдалануға болады, олар жабық жұмыс орындарын қорғау үшін пайдаланылуы мүмкін. Олар әр түрлі қоймаларда, мысалы қоймалар, логистикалық орталықтар және зауыттар сияқты кеңінен қолданылады.
Liwiyuan металл қауіпсіздігінің ортақ өлшемдері мыналарды қамтиды: ұзындығы 1,5 метрге ұзындығы 1,5 метр; Ұзындығы 2,5 метр биіктігі 2 метр; және ұзындығы 2,5 метр биіктікте. Жеке өлшемдер қол жетімді. Болат материалдар құрамына Q235B, Q355B, A36, A36 және A572, еуропалық және американдық стандарттар кіреді.
