
Болат құрылымы ҚҰРЫЛЫС ҚАУІПСІЗДІГІ Ғимараттың төсенішін дренаж жүйесінің шешуші құрамдас бөлігі болып табылады. Олардың негізгі функциясы - шатырдан жаңбыр суын жинап, оны тік құбырларға бағыттаңыз, содан кейін оны сыртқы дренаж жүйесіне шығарыңыз, содан кейін оны қабырғаға немесе қабырғаға тікелей сөндіруге жол бермейді. Liweiyuan компаниясының өнімдерін жобалау және орнату жоғары беріктігі мен жеңіл салмағы, тегіс дренажды және ерекше беріктікпен сипатталады.
Болат құрылымы ҚҰРЫЛЫС ҚАУІПСІЗДІГІ Ғимараттың төсенішін дренаж жүйесінің шешуші құрамдас бөлігі болып табылады. Олардың негізгі функциясы - шатырдан жаңбыр суын жинап, оны тік құбырларға бағыттаңыз, содан кейін оны сыртқы дренаж жүйесіне шығарыңыз, содан кейін оны қабырғаға немесе қабырғаға тікелей сөндіруге жол бермейді. Liweiyuan компаниясының өнімдерін жобалау және орнату жоғары беріктігі мен жеңіл салмағы, тегіс дренажды және ерекше беріктікпен сипатталады.
Liweiyuan's Болаттың құрылымы коррозияға төзімді және әсерге төзімді материалдардан жасалған.
Біздің өніміміз - бұл ыстық-гальванизацияланған, тамаша коррозияға қарсы тұрақтылықты, арзанға және ұзақ қызмет ету мерзімін ұсынады. Қалыңдақтағы 1,5-2,5 мм қол жетімді, бұл көптеген қосымшалар үшін қолайлы.
Тот баспайтын болаттан жасалған, бұл өнім коррозияға төзімділікті ұсынады және әсіресе жағалаудағы немесе ылғалды ортаға қолайлы. Қалыңдақтарда 1,0-2,0 мм қол жетімді, ол жоғары бағаны ұсынады, бірақ ұзақ қызмет ету мерзімі.
Біздің түспен қапталған болаттан жасалған бұйымдар мырышталған болатқа негізделген, мысалы, полиэстер немесе фторлы, мысалы, полиэстер немесе фторлы, сонымен қатар коррозияға төзімділік және сәндік әсерлер үшін. 1,2-2,0 мм қалыңдығы бар, олар эстетикалық тартымдылықты қажет ететін ғимараттарға жарамды.
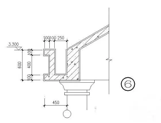
Болат құрылымының құрылымдық формасы шатырдың баурайына және құлақшалар дизайнына бейімделуі керек. Жалпы түрлерде U-тәрізді және V тәрізді кіреді. Орнату процесі келесідей:
Біздің болат құрылымымыз ішектеріміз болат құрылымының арқалықтарына немесе пурлиндеріне бекітіңіз. Кронштейн аралық аралық 600-1000 мм, тіпті қоқыс арқылы стрессті таратуды қамтамасыз ету үшін.
Аяқталған ішектер алдын-ала өлшемді және қосылыстар қосқыштарды немесе дәнекерлеуді қолдана отырып қосылған. Герметикалық қоқыс пен шатырдың палубасы арасындағы түйіспеге қажет.
Біз шатырдың қабығынан жоғары жыпылықтаймыз. Қоқыстың төменгі ұшы төбесінің астына қойылып, тығыздағышпен жабылған болуы керек. Су төгетін тесіктерді қоқыс түбінде, ең алдымен жаңбыр суларының көтергіштеріне қосылу керек.
Біздің болат құрылымымызға арналған қопсытқыштар Өндірістік процеске сурет салу, иілу, кескіндеме, дайын өнім инспекциясы, орам және жөнелту бойынша кесу кіреді. Liweiyuan-дің болат құрылымы, коррозияға төзімділікті, тегіс дренажды және тұрақтылықты қамтамасыз ету үшін жасалған және орнатылған.